ONLY YOU HOTEL
Concept
選ぶのは、私だけの時間。
周囲に気兼ねすることなく、自分のペースで過ごせる落ち着いた空間。
無駄を省いたシンプルな設えが、心と時間に余白をもたらします。
誰かのためではなく、“自分のために泊まる” 東京でのひとときをお楽しみください。
皆様のご予約・ご宿泊を、心よりお待ちしております。
選ぶのは、私だけの時間。
周囲に気兼ねすることなく、自分のペースで過ごせる落ち着いた空間。
無駄を省いたシンプルな設えが、心と時間に余白をもたらします。
誰かのためではなく、“自分のために泊まる” 東京でのひとときをお楽しみください。
皆様のご予約・ご宿泊を、心よりお待ちしております。
| Area/Adress | 〒120-0044 東京都足立区千住緑町2丁目23−9 |
|---|---|
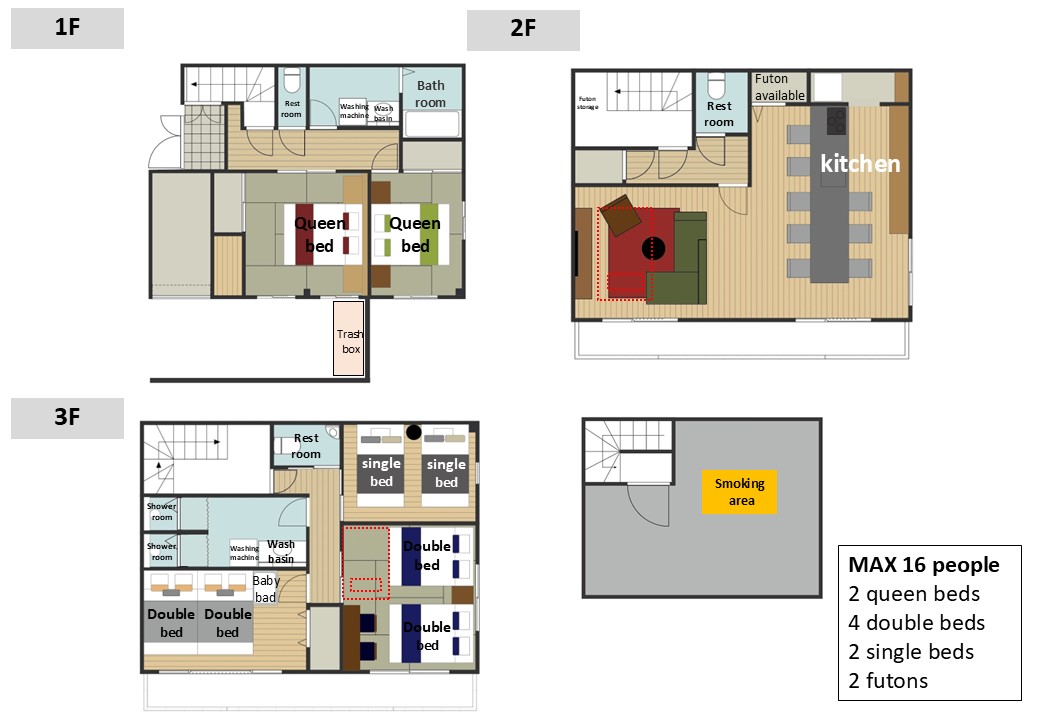
| Maximum capacity | 16ppl |
| Floor Plan (m²) | 3F / 5LDK (177㎡) |
| Bedrooms (Beds) | 5 Bed Room (8Beds) |
| Check in | Self check-in |
| Parking | 有り(一台) |
| Others | [ Wi-Fi ] 高速光固定wifi ・ポケットWifi 完備 |
| By Train | 京成本線千住大橋駅(KS03)徒歩9分 千住大橋駅まで 成田空港 55分 羽田空港 45分(直通) 東京駅 25分 品川駅 32分 |
|---|---|
| By Car | ・1台分の駐車スペースがございます。 ・2台目以降の駐車スペースはありませんので、コインパーキングをご利用ください。 [ ナビパーク 千住緑町第1 ] 全曜日 8:00〜24:00 60分 / 200円 0:00~8:00 60分 / 100円 24時間最大 1,200円 ※駐車料金は変更される可能性があります。 |
| 送迎サービス | 羽田空港:20,000円 成田空港:30,000円 ハイエース1台9名様まで可。 |